Metode pemasangan gerbang penghalang boom yang benar
Pemilihan lokasi pemasangan
Sesuai dengan kebutuhan pelanggan untuk menentukan posisi pemasangan penghalang, persyaratan berikut harus diperhatikan:
1. Posisi pemasangan harus mampu membuat palang pembatas berada pada sudut antara vertikal dan horizontal.
2. Jika pondasi pemasangan tidak dibuat, permukaan pemasangan harus mampu mengencangkan kotak dengan kuat agar stop bar dapat berjalan dengan stabil.
3. Jika pondasi pemasangan dibuat, disarankan menggunakan semen cepat kering, pondasi pemasangan tidak boleh kurang dari 800*800*150mm, dan permukaan pemasangan harus horizontal.
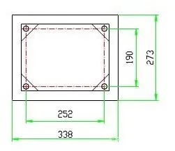
Penentuan posisi lubang pemasangan
1. Posisi lubang pemasangan dapat ditentukan berdasarkan dimensi berikut pada permukaan pemasangan.

2. Kotak gerbang juga dapat ditempatkan pada permukaan pemasangan dan ditandai pada permukaan pemasangan melalui posisi lubang pemasangan kotak.
Peletakan saluran listrik
Letakkan kabel listrik dari catu daya ke kotak gerbang. Spesifikasi saluran listrik adalah rvv3 × 1,5 mm atau lebih besar.
Pemasangan kotak
1. Bor lubang pada lubang pemasangan dengan mata bor tumbukan berdiameter 14mm, dengan kedalaman sekitar 100mm.
2. Pasang baut ekspansi dengan diameter 12 mm ke dalam lubang pemasangan, kencangkan mur dan tarik mur.
3. Letakkan kotak gerbang pada lubang pemasangan, sambil mengencangkan mur, sesuaikan vertikalitas kotak gerbang agar kotak vertikal, dan terakhir kencangkan kotak dengan kuat.
Memperbaiki batang penahan
Sejajarkan pelat penjepit penyekat dengan posisi lubang batang penyekat, masukkan baut berdiameter 12 mm, kemudian pasangkan batang penyekat pada pelat pengikat batang penahan kotak gerbang penghalang.

